Skip links

Alloggi Popolari Paternò

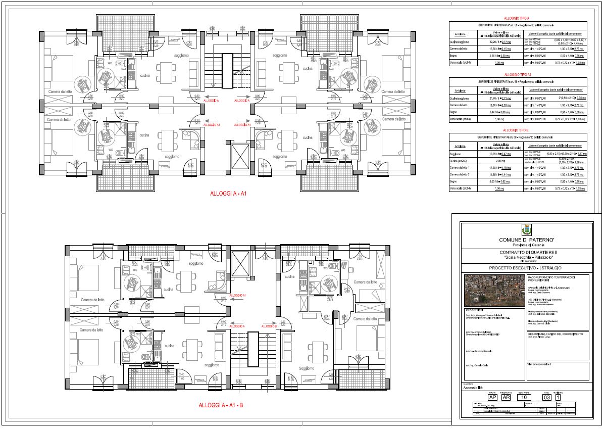
L’incarico ha riguardato la PROGETTAZIONE ESECUTIVA in R.T.P. inerente al Contratto di Quartiere II, Scala Vecchia – Palazzolo nel Comune di Paternò. Il progetto in argomento ha previsto un insieme sistematico di opere che interessano un'area periferica del territorio comunale di Paternò (CT) e che nello specifico hanno riguardato la realizzazione di opere di urbanizzazione, la costruzione di 26 alloggi popolari inseriti in n°3 corpi di fabbrica, la costruzione di un centro polifunzionale e la realizzazione di un parco urbano.

Prestazioni:

Progettazione definitiva, esecutiva e coordinamento sicurezza in fase di progettazione – Gennaio 2015

Committente:

Comune Di Paternò (CT)

Explore
Drag