Skip links

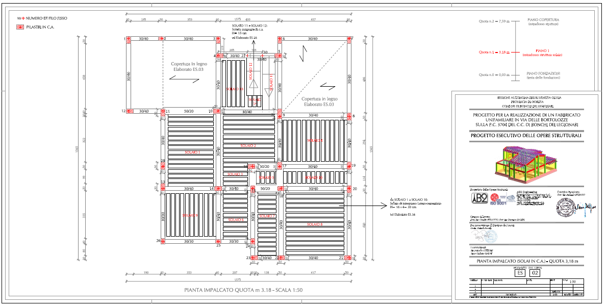
Villetta a Ronchi dei Legionari

L’incarico, ha riguardato la progettazione strutturale dei “Lavori di costruzione di una villetta unifamilare sita in Ronchi dei Legionari (GO) in via delle Bortolozze.”

La villetta è costituita da un piano terra e un primo piano con copertura in legno a vista. La struttura dell’edificio è formata da una maglia di travi e pilastri in calcestruzzo armato; i solai piani sono realizzati in laterocemento mentre quelli inclinati della copertura con travi in legno lamellare.

Prestazioni:

 Progettazione esecutiva opere strutturali – 2021.

Committente:

Privato

Explore
Drag